Zespół magazynowo-produkcyjno-biurowy w Kolonii Lesznowola






Previous
Next
opis:
Inwestor: prywatny
Data: 2018
Powierzchnia:
Część biurowa: 1 600 m2
Część produkcyjna: 2 400 m2
Część magazynowa: 1 300 m2
Data: 2018
Powierzchnia:
Część biurowa: 1 600 m2
Część produkcyjna: 2 400 m2
Część magazynowa: 1 300 m2
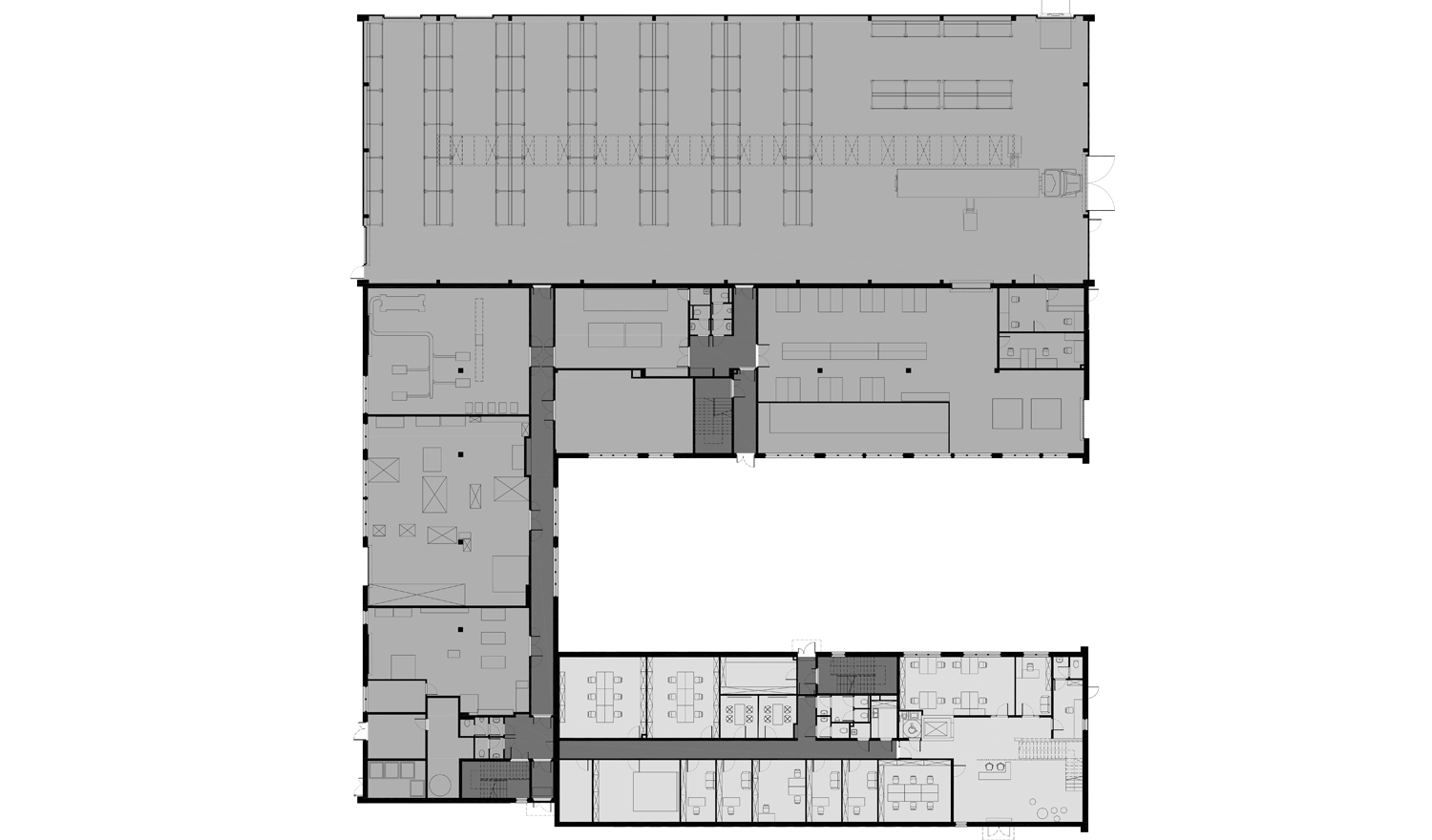
Projekt budynku produkcyjnego. obiekt składa się z trzech części:
– część biurowa (3 kondygnacyjna)
– część produkcyjna (dwukondygnacyjna)
– część magazynowa (powierzchnia halowa, jednokondygnacyjna)
Wszystkie części stanowią integralną całość i są powiązane układem komunikacyjnym i infrastrukturalnym.
Część biurowa, posiada reprezentacyjne wejście od strony ulicy Słonecznej, ewakuacyjne od strony wewnętrznego „dziedzińca” oraz pomocnicze wyjście z pomieszczenia ochrony. Na parterze zlokalizowano pomieszczenie holu ogólnodostępnego wraz z recepcją, reprezentacyjnymi schodami i windą. Na piętrze +1 znajdują się pomieszczenia do pracy biurowej oraz centrum konferencyjne. Na piętrze +2 mieści się powierzchnia biurowa w układzie typu open space.
Część produkcyjna posiada trzy wejścia główne, oraz szereg wejść i bram pomocniczych związanych z technologią produkcji i obsługi infrastruktury technicznej. Pomieszczenia produkcyjne mieszczą się na obu kondygnacjach.
Część magazynowa, parterowa to przestrzeń o wysokości 10m. . Posiada dwa wyjścia ewakuacyjne, dok przeładunkowy, bramę zewnętrzną oraz bramę technologiczną.
Cześć frontowa zaprojektowana jest o charakterze reprezentacyjnym z elementami szklanej kurtyny i perforowanej fasady osłonowej. Pozostałe dwie części projektowane jako układ addycyjnych brył z podkreślonymi płaszczyznami prowadzącymi, z poziomymi podziałami płyt elewacyjnych wielkoformatowych oraz takim samym układem detali. Projektuje się kolorystykę obiektu w trzech odcieniach szarości.
– część biurowa (3 kondygnacyjna)
– część produkcyjna (dwukondygnacyjna)
– część magazynowa (powierzchnia halowa, jednokondygnacyjna)
Wszystkie części stanowią integralną całość i są powiązane układem komunikacyjnym i infrastrukturalnym.
Część biurowa, posiada reprezentacyjne wejście od strony ulicy Słonecznej, ewakuacyjne od strony wewnętrznego „dziedzińca” oraz pomocnicze wyjście z pomieszczenia ochrony. Na parterze zlokalizowano pomieszczenie holu ogólnodostępnego wraz z recepcją, reprezentacyjnymi schodami i windą. Na piętrze +1 znajdują się pomieszczenia do pracy biurowej oraz centrum konferencyjne. Na piętrze +2 mieści się powierzchnia biurowa w układzie typu open space.
Część produkcyjna posiada trzy wejścia główne, oraz szereg wejść i bram pomocniczych związanych z technologią produkcji i obsługi infrastruktury technicznej. Pomieszczenia produkcyjne mieszczą się na obu kondygnacjach.
Część magazynowa, parterowa to przestrzeń o wysokości 10m. . Posiada dwa wyjścia ewakuacyjne, dok przeładunkowy, bramę zewnętrzną oraz bramę technologiczną.
Cześć frontowa zaprojektowana jest o charakterze reprezentacyjnym z elementami szklanej kurtyny i perforowanej fasady osłonowej. Pozostałe dwie części projektowane jako układ addycyjnych brył z podkreślonymi płaszczyznami prowadzącymi, z poziomymi podziałami płyt elewacyjnych wielkoformatowych oraz takim samym układem detali. Projektuje się kolorystykę obiektu w trzech odcieniach szarości.

